TC-03 MAISON EN TERRE CRUE

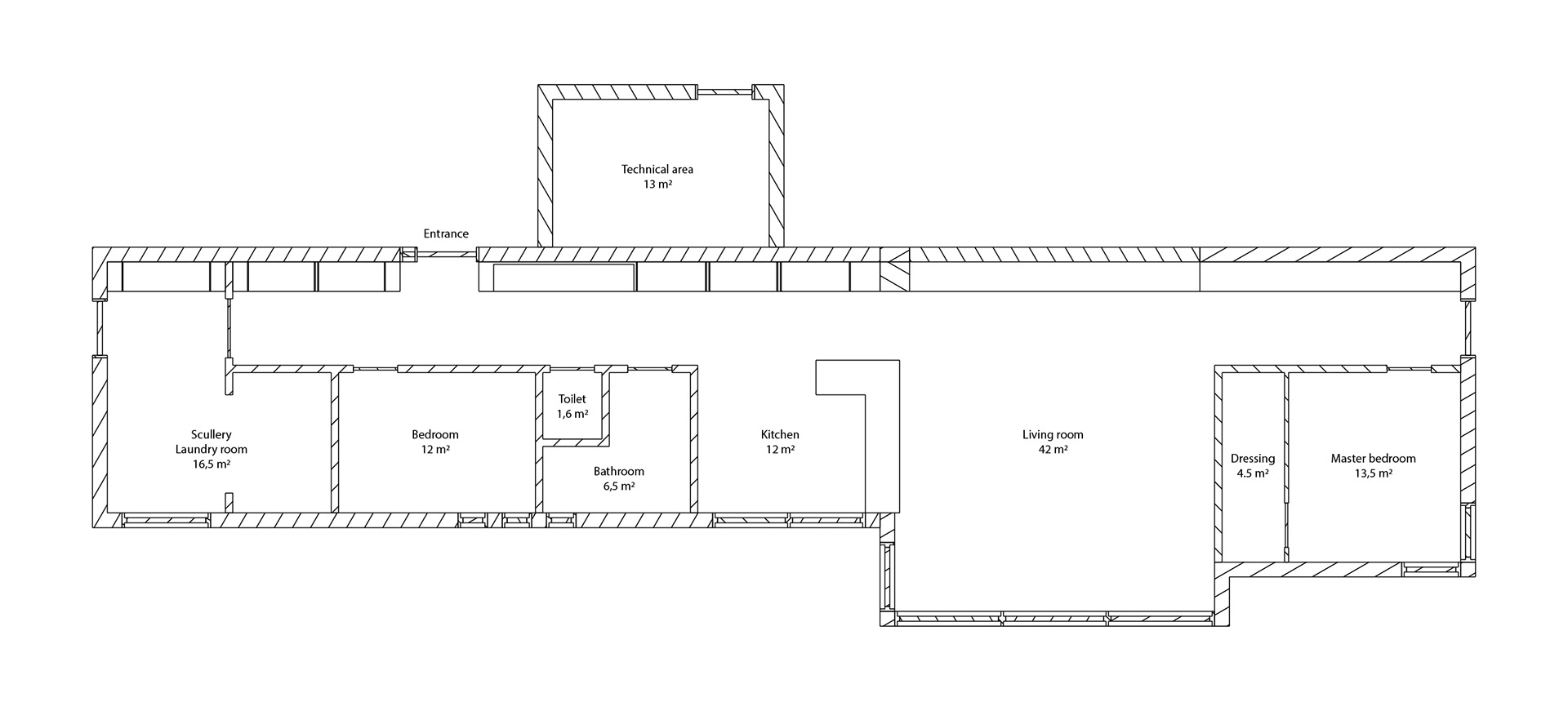
Maison en terre crue de 175 m² conçue pour pouvoir être construite en auto-construction / chantiers participatifs.
Sur le modèle des longères françaises et de la résidence privée Jean Prouvé à Nancy, la maison est composée de deux ailes et d'un espace commun au milieu. Mono-orientée, et contrairement au nord, la façade sud présente la majorité des ouvertures. Son toit en tôle est léger et permet aux murs d'argile de rester à l'abri des intempéries.
Cette maison est également autosuffisante en énergie grâce à 75 m² de panneaux photovoltaïques. Cette surface permet également de produire de l'énergie supplémentaire.
Avril 2020
Back to Top